Если цена в объявлении изменится, мы сразу сообщим вам об этом на электронную почту.
Нажимая «Подписаться», вы соглашаетесь с правилами.
продам дом, Кубинка1 200 000 ₽
25 июня 2025
Дата публикации объявления
Обн. 2 июля 2025
Дата обновления объявления
54
Количество просмотров (+ просмотры за сегодня)
40 000 ₽/м²
Чистая продажа
Термин "Чистая продажа" означает, что в квартире никто не прописан или
есть куда выписаться и вывезти вещи. Это лучший вариант для покупателя.
Вероятность срыва сделки минимальна.
Этажей1
Площадь участка1 сотка
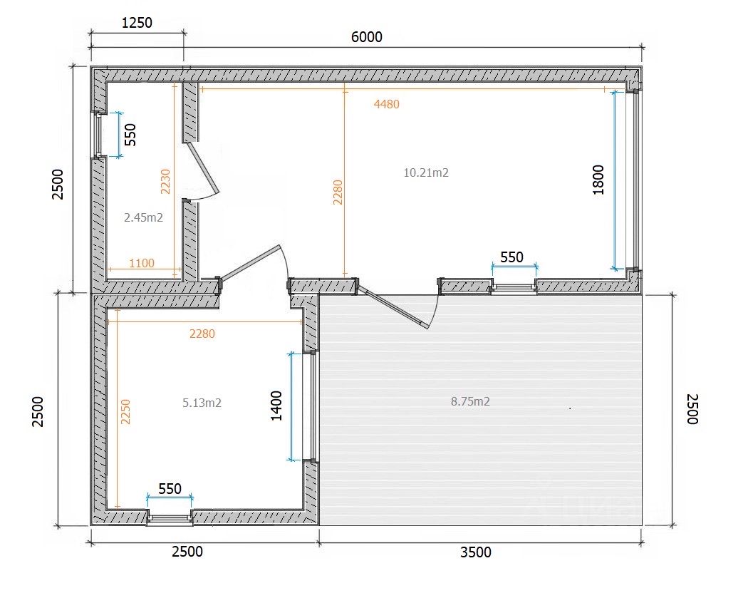
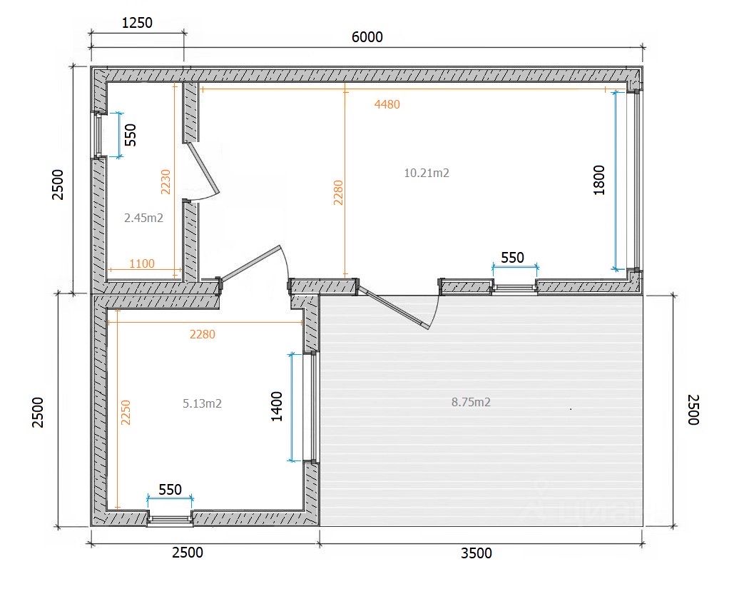
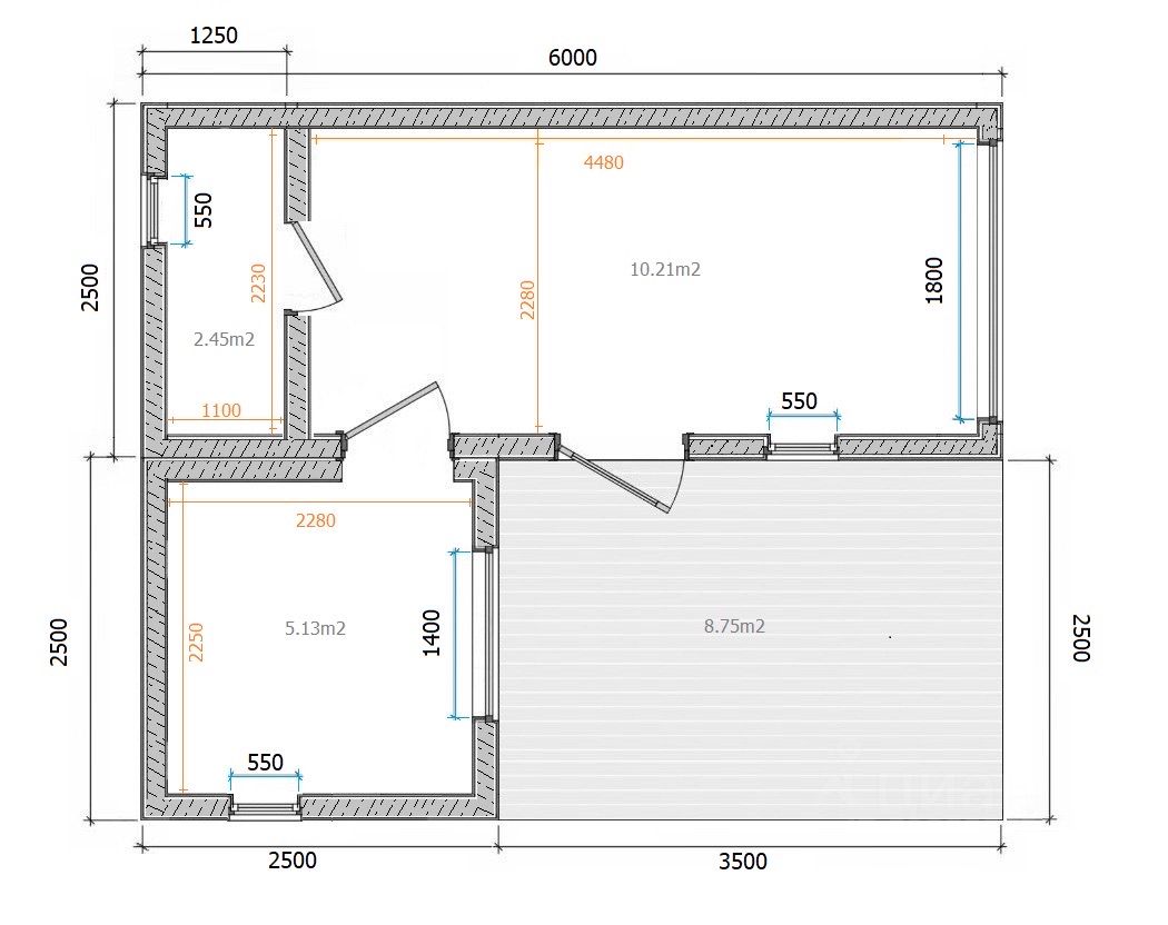
Общая площадь30 м2
Материал домадерево
ЭлектричествоЕсть
Газоснабжениенет
Продаю модульный дом 30 м2 БЕЗ ЗЕМЕЛЬНОГО УЧАСТКА. Могу помочь с перевозкой и установкой дома на ВАШ участок. Дом готов к проживанию и использованию. Посмотреть можно в г.Кубинке.